Trojizbový 78m2 byt Málinec

Trojizbový 78m2 byt Málinec

Ponúkame na predaj slnečný a teplý 3-izbový byt s úžitkovou plochou 78 m², situovaný na prízemí tehlového bytového domu v obci Málinec. Bytový dom má len jedno poschodie (nad bytom sú susedia), čo zaručuje komornú atmosféru a súkromie.

Parametre a stav bytu

Byt prešiel čiastočnou rekonštrukciou, ktorá mu dodala modernejší nádych a zlepšila funkčnosť priestoru.

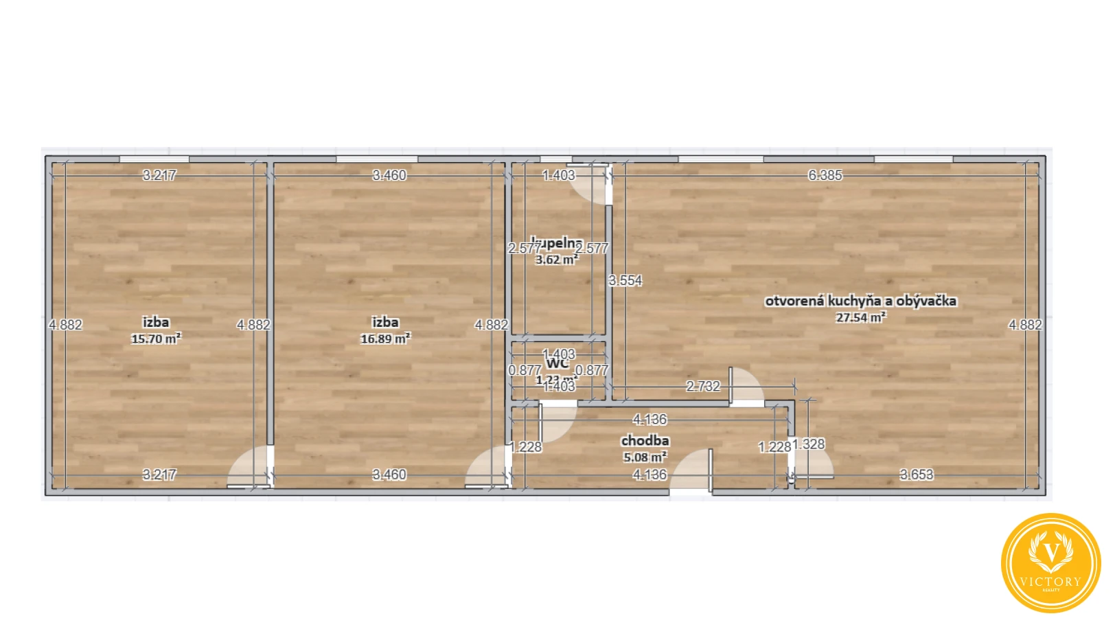
Dispozičné riešenie

Byt má atypickú a vzdušnú dispozíciu, ktorá vznikla odstránením priečky medzi dennou časťou:

  1. Vstup: Členená chodba s dostatkom miesta pre odkladacie priestory.
  2. Denná zóna: Vpravo sa nachádza veľká otvorená kuchyňa prepojená s obývačkou (bez dverí), čo vytvára moderný "open-space".
  3. Hygiena: Samostatné WC prístupné z chodby a kúpeľňa prístupná priamo z dennej zóny.
  4. Nočná zóna: Jedna prechodná izba, z ktorej sa vstupuje do samostatnej zadnej spálne.

O obci Málinec (okres Poltár)

Obec Málinec leží v malebnom prostredí Stolických vrchov a je známa najmä vďaka rovnomennej vodnej nádrži v jej blízkosti.

Názor makléra

Tento byt je ideálnou voľbou pre rodinu alebo pár, ktorí hľadajú cenovo dostupné bývanie s atmosférou rodinného domu. Vďaka tehlovej konštrukcii a orientácii na juh je byt mimoriadne útulný. Výhodou je jeho pôvodný stav s možnostou prerobenia na svoj osobý obraz. 

Najväčším benefitom je veľkorysá metráž 78 m² a prepojená kuchyňa s obývačkou, čo nebýva v starších bytovkách zvykom. Kúrenie na tuhé palivo dnes mnohí vnímajú ako výhodu – umožňuje mať náklady pod kontrolou a v zime vytvára neopakovateľné teplo domova. Ak hľadáte pokojný život v obci obklopenej prírodou, tento byt má obrovský potenciál.

Základné informácie o ponuke

ikonaVlastníctvo: osobné
ikonaEnergetický certifikát: nie
ikonaStav: pôvodný
ikonaMateriál: tehla

Zobraziť všetky parametre ponuky


Počet miestností
5
Počet poschodí celkom
1
Poschodie
prízemie
Počet izieb
3
Pivnica
Áno
Výťah
nie
Parkovanie
Verejné
Kanalizácia
áno
Elektrická prípojka
Áno
Vodovodná prípojka
Áno
WC
1
Kúpeľne
áno
Počet kúpeľní
1
Balkón
nie
Lodžia
Nie
Terasa
Nie
Zariadenie
Holopriestor
Predzáhradka
Nie
Ulica
Sklárska
Orientácia
južná
Terén
Rovinatý
Prístupová cesta
Asfaltová
Klimatizácia
nie
Stav fasády
Pôvodná
Dátum kolaudácie
1976
Strecha
pôvodná

Parametre a stav bytu

Byt prešiel čiastočnou rekonštrukciou, ktorá mu dodala modernejší nádych a zlepšila funkčnosť priestoru.

  • Orientácia: Južná (byt je po celý deň krásne presvetlený a prirodzene teplý).
  • Materiál: Tradičná tehla (výborné akumulačné vlastnosti).
  • Kúrenie: Lokálne na tuhé palivo (nízke mesačné náklady a nezávislosť).
  • Vybavenie: * Čiastočne vymenené plastové okná.

    • Kombinácia plávajúcich podláh a dlažby.
    • Zrekonštruovaná kúpeľňa.
  • Príslušenstvo: K bytu prislúchajú dve priestranné murované pivnice.

Dispozičné riešenie

Byt má atypickú a vzdušnú dispozíciu, ktorá vznikla odstránením priečky medzi dennou časťou:

  1. Vstup: Členená chodba s dostatkom miesta pre odkladacie priestory.
  2. Denná zóna: Vpravo sa nachádza veľká otvorená kuchyňa prepojená s obývačkou (bez dverí), čo vytvára moderný "open-space".
  3. Hygiena: Samostatné WC prístupné z chodby a kúpeľňa prístupná priamo z dennej zóny.
  4. Nočná zóna: Jedna prechodná izba, z ktorej sa vstupuje do samostatnej zadnej spálne.

O obci Málinec (okres Poltár)

Obec Málinec leží v malebnom prostredí Stolických vrchov a je známa najmä vďaka rovnomennej vodnej nádrži v jej blízkosti.

  • Občianska vybavenosť: V obci nájdete školu, škôlku, poštu, potraviny aj pohostinstvá.
  • Príroda: Ideálne miesto pre milovníkov turistiky, hubárčenia a pokoja. Vodná nádrž Málinec dotvára unikátnu mikroklímu oblasti.
  • Dostupnosť: Okresné mesto Poltár je vzdialené len cca 15 minút cesty autom.

Názor makléra

Tento byt je ideálnou voľbou pre rodinu alebo pár, ktorí hľadajú cenovo dostupné bývanie s atmosférou rodinného domu. Vďaka tehlovej konštrukcii a orientácii na juh je byt mimoriadne útulný. Výhodou je jeho pôvodný stav s možnostou prerobenia na svoj osobý obraz. 

Najväčším benefitom je veľkorysá metráž 78 m² a prepojená kuchyňa s obývačkou, čo nebýva v starších bytovkách zvykom. Kúrenie na tuhé palivo dnes mnohí vnímajú ako výhodu – umožňuje mať náklady pod kontrolou a v zime vytvára neopakovateľné teplo domova. Ak hľadáte pokojný život v obci obklopenej prírodou, tento byt má obrovský potenciál.

Kúpna cena: 33 000 €

Stiahnuť PDF

Fotogaléria

Trojizbový 78m2 byt MálinecTrojizbový 78m2 byt MálinecTrojizbový 78m2 byt MálinecTrojizbový 78m2 byt MálinecTrojizbový 78m2 byt MálinecTrojizbový 78m2 byt MálinecTrojizbový 78m2 byt MálinecTrojizbový 78m2 byt MálinecTrojizbový 78m2 byt MálinecTrojizbový 78m2 byt MálinecTrojizbový 78m2 byt Málinec

Poloha

DOHODNÚŤ OBHLIADKU


Pred tým ako navštívite našu webovú stránku

Pomocou súborov cookie a údajov poskytujeme a prevádzkujeme služby, meriame návštevnosť a štatistiky webu. Pomocou súborov cookies a údajov podľa vašich nastavení budeme zobrazovať prispôsobené alebo všeobecné reklamy na internete. Voľbou tlačidla Prispôsobiť zobrazíte nastavenia vrátane možnosti odmietnuť prispôsobenie pomocou súborov cookie a informácie o ovládaní na úrovni prehliadača umožňujúce odmietnuť používanie niektorých, či všetkých súborov cookie na iné účely. Prispôsobiť voľbu

Súhlasím

Nesúhlasím